公司概况新闻中心产品展示行业应用资料下载联系我们

 




TAL-AL-BM
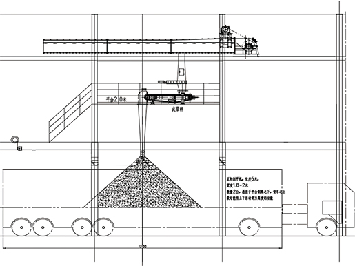
散料全自动装车机
TAL系列散装全自动装车机可实现无人化、智能化装车,可以适用各种箱式、灌装的散装物料装车要求。
功能特点:
装车速度快,适用于各类13M、17M车厢;自动化程度高,车辆停在指定区域后,系统根据指令要求判定容积比自动装车;智能化完成车辆扫描,形成车辆的位置信息和长宽高数据,由系统自动完成装车工作。



Copyright © 1996-2025 . 三维汉界 版权所有 鲁ICP备10016314号-11
技术支持:三维汉界